ACJ RESIDENCY - Thiruvanmiyur
Project Details
- Project Name: ACJ RESIDENCY
- Project Location: Thiruvanmiyur
- Project Type: Residencial
- Project Land Area : 2400 sft
- Project Built up Area : 7011 sft
Importance Of Amenities And Features
- Ground floor: 5 car parking spaces with a workers’ room and toilet
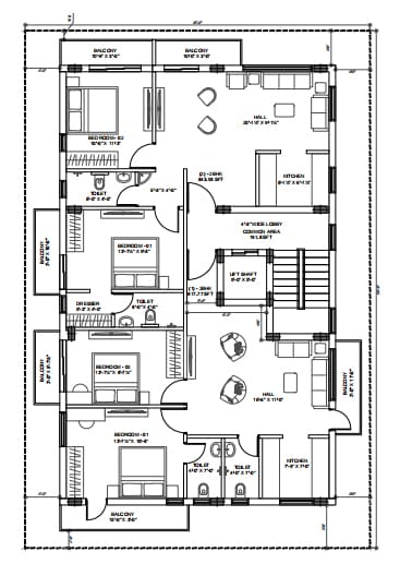
- First floor: 2 nos of 2BHK flats for letting purposes
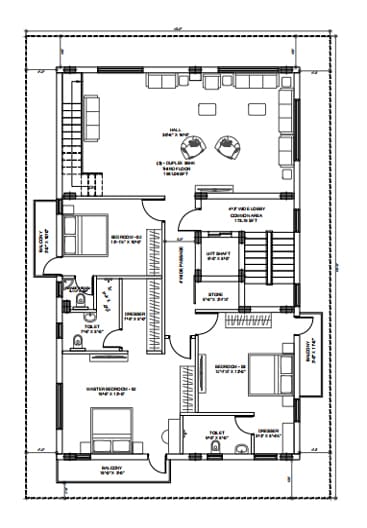
- Second floor and Third floor: Duplex house with 5 bedrooms
- Second floor: Spacious hall, island kitchen with dining, store room, utility, pooja room, safe room, balcony, and 2 bedrooms with attached toilet
- Third floor: Hall with home theatre arrangement, laundry room, balconies, and 3 bedrooms with attached toilet
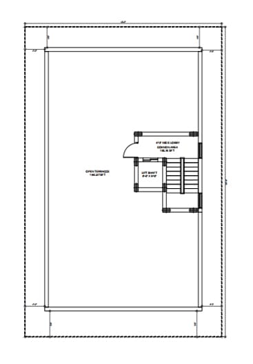
- Terrace: Light roofing shed with swing and outdoor dining table arrangement, and a 5KW solar panel on top of the shed
Importance Of Amenities And Features
We prepared the architectural drawings and obtained approval for the proposed building and demolition of the old building. After getting the approval, we started demolition and performed the Bhoomi Pooja on 23.01.2023. The building was handed over on 14.07.2024.
The building has a posh appearance with a grey theme facade featuring natural slate stone cladding, rough and polished stone cladding, aluminum vertical rafters with wood finish, textured painting, and glass railing. The compound wall has granite cladding, metal lighting, a house name, and a motorized stainless steel sliding gate with HPL sheet.
The interior theme is brown and beige. The teak wood entrance door has a top laminated glass panel with a bottom teak wood panel finished with melamine polish and a smart lock connected with a video door phone. The grand main door is made of first-quality teak wood with beautifully carved architrave borders and artistic brass-finished divine metal plates. The main door has a wooden safety door with a beautiful design.
All other doors are veneer-finished with melamine polish. The flooring is finished with Italian marble with a crystal finish, and the duplex staircase flooring is done with dark Italian marble. The staircase has full glass railing with wood-finished top railing.
The entire house has aesthetic false ceiling with veneer panelling, profile LEDs, panel LEDs, and necessary cove lights. The hall TV unit and staircase unit are finished with veneer and acrylic. The wardrobe, dresser unit, and others are finished with laminates.
The kitchen is designed with an island, imported granite countertops, glossy white engineered marble backsplash, and glossy designer tile chimney background. The units are made of boiling waterproof plywood with 1.5mm thick acrylic-finished shutters. Faber make 5-burner hob and 900mm chimney are placed well, along with accessories like tandom boxes, oil pull-out, and corner pull-outs.
Overall, the project turned out excellent, and the construction and interior took 18 months from the starting date of foundation works.
Contact us
- 044 42602529
- +91 98405 59171
- sarvayogambuilders@gmail.com
- No:4,9th Main Road, Dhandeeswaram,Velachery Chennai
Enquiry to us
ACJ Residency - Floor Plan





Excellent Job!
December 17, 2025
Thanks a lot sir. Our dream home had come out really superb. Thanks to your entire team for wonderful and Hassle free coordination and execution. Really looking forward for more such association in future. All best to the entire team.
Gayathri Vaidyanathan




















